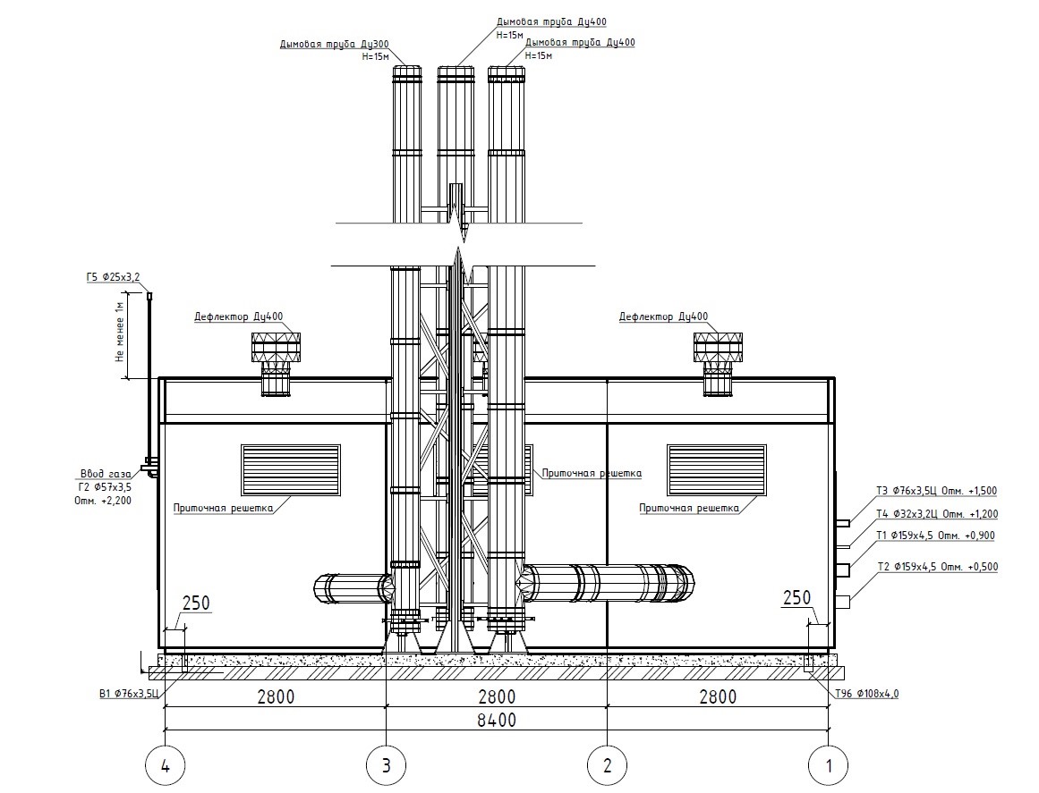
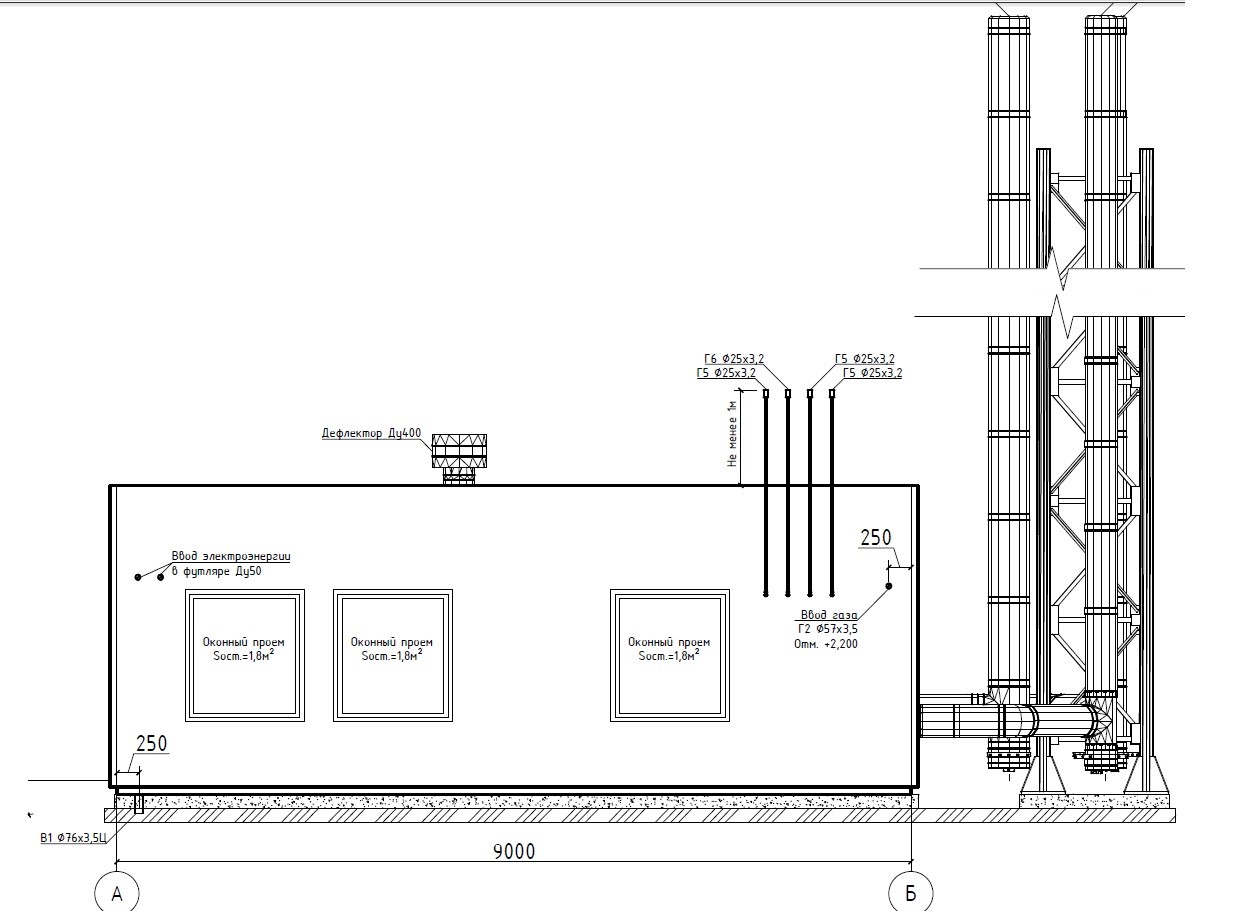
Блочно-модульная котельная ТКУ-3100
Блочно-модульная котельная 3,1 МВт (2 котла TITAN Prom 1200 с горелкой ECO 50 G C2+R.CT.S.D2 мощностью 1200 кВт и один котел TITAN Prom 700 с горелкой ECO 45 G C 2A+R.D.D1 ½ мощностью 700 кВт);
- Топливо - природный газ;
- Общая тепловая нагрузка = 2,57 Гкал/час в том числе:
- Отопление - 1,539 Гкал/час,
- ГВС макс - 0,75 Гкал/час,
- ГВСср - 0,59 Гкал/час,
Схема теплоснабжения:
- 4-х трубная тепловая сеть,
- присоединение систем отопления - независимое, без водоразбора;
- присоединение систем ГВС - независимое, с открытым водоразбором и циркуляционной линией.
- Температурный график работы теплосети - 95/70 °С, регулирование отпуска тепла - качественное;
Температурный график работы системы ГВС - 5/65 °С, с постоянной температурой в подающем трубопроводе.
В НАЛИЧИИ 1 шт.



